文京区本郷1丁目の賃貸マンション

37.3万円~55万円 管理/共益費 0円

東京都文京区本郷1丁目

丸ノ内線「本郷三丁目」駅徒歩7分

都営三田線「水道橋」駅徒歩5分

都営大江戸線「春日」駅徒歩6分

価格
37.3万円~55万円 管理/共益費 0円
間取り/面積
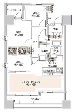
2LDK/60.49㎡~78.76㎡
所在地
東京都文京区本郷1丁目
築年
2018年11月(築7年)
駐車
-
交通

丸ノ内線本郷三丁目」駅 徒歩7分

都営三田線水道橋」駅 徒歩5分

都営大江戸線春日」駅 徒歩6分

文京区本郷1丁目の賃貸マンションの基本情報

物件名
文京区本郷1丁目の賃貸マンション
価格
37.3万円~55万円
管理/共益費
0円
築年月
2018年11月(築7年)
総戸数
-
所在地
東京都文京区本郷1丁目
交通

丸ノ内線本郷三丁目」駅 徒歩7分

都営三田線水道橋」駅 徒歩5分

都営大江戸線春日」駅 徒歩6分

文京区本郷1丁目の賃貸マンションの詳細情報

設備条件
  • エレベーター
  • 駐輪場
  • 敷地内ごみ置き場
  • 耐震構造
  • CATV
  • 光ファイバー
  • オートロック
  • 宅配ボックス
  • 防犯カメラ
  • 24時間ゴミ出し可
設備(その他)
    -
駐車場/月額
-/-
用途地域
-
戸数
- / -
取引態様
仲介

文京区本郷1丁目の賃貸マンションで募集中の物件

  1. 5階

    18.29坪 (60.49㎡)

    37.3万円(20393.66円/坪)

  2. 6階

    23.82坪 (78.76㎡)

    55万円(23089.84円/坪)

  3. 8階

    22.87坪 (75.61㎡)

    49万円(21425.45円/坪)

近隣の物件

  1. 文京区湯島3丁目

    2LDK (52.75㎡)

    33.3万円

文京区本郷1丁目の賃貸マンション

お気軽にお問い合わせください

無料お問い合わせ

邦興商事株式会社 (Houkou Syouji Co.,Ltd)

03-5828-0081

10:00~19:00、水・日・祝は18:00迄

(休:無休(年末年始除く))